Продажа торговой площади

10 500 000 ₽

65 790 ₽ за м²

160 м²
Площадь
1/5
Этаж

Поделиться

Добавить в избранное

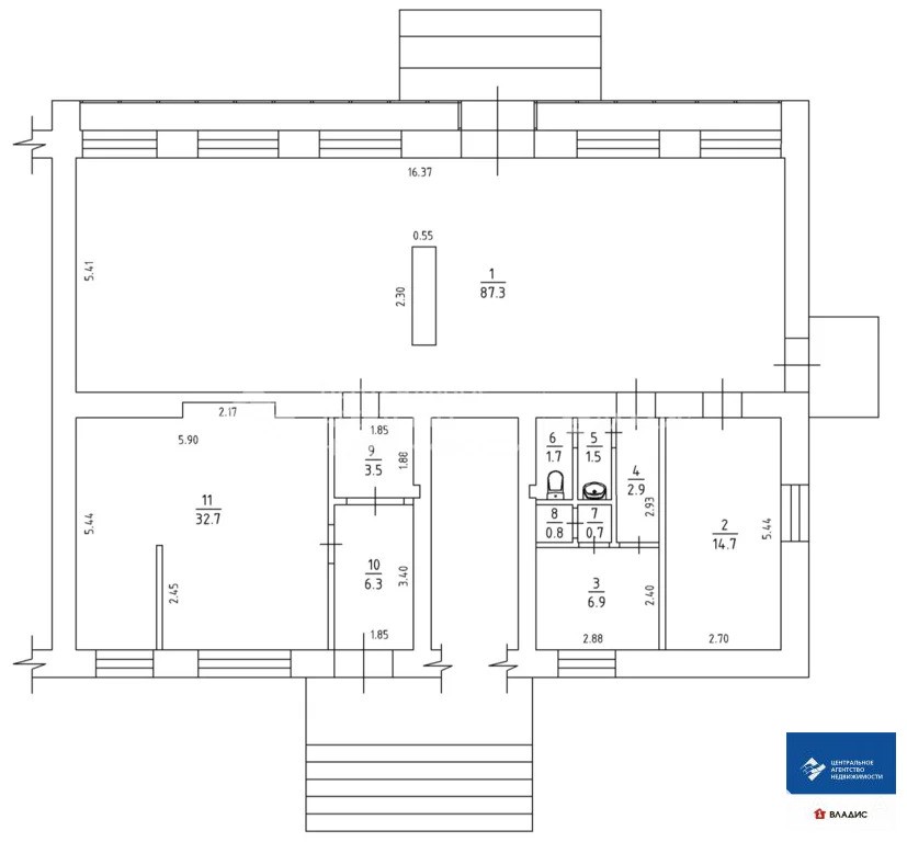
Код объекта: 1805821.Продается нежилое помещение с действующим федеральным арендатором, торговая сеть "Бристоль". Адрес объекта: г. Рязань, ул. Весенняя д. 3/15. Жилой густонаселённый район в Центре города.Первый этаж, первая линия, площадь помещения 159, 6 кв.м, Объект расположен рядом на пересечении улиц Весенняя и Чкалова напротив светофора с пешеходным переходом, активный пешеходный трафик, в шаговой доступности остановка общественного транспорта маршрутов 77, 49, 5. Помещение имеет свободную планировку, высота потолка 3 м, 3 отдельных входа, один погрузо-разгрузочный, сан. узел. Коммуникации: эл. мощность 15 кВт, ГХВС, отопление, пожарная и охранная сигнализации, интернет. Возможные назначения: объект инвестирования с сохранением действующего арендатора и долгосрочного договора аренды МАП/мес., комм. платежи оплачиваются Арендатором отдельно. AFY-800825169

Дата обновления: 31 января 2026