Продажа помещения свободного назначения

8 500 000 ₽

22 607 ₽ за м²

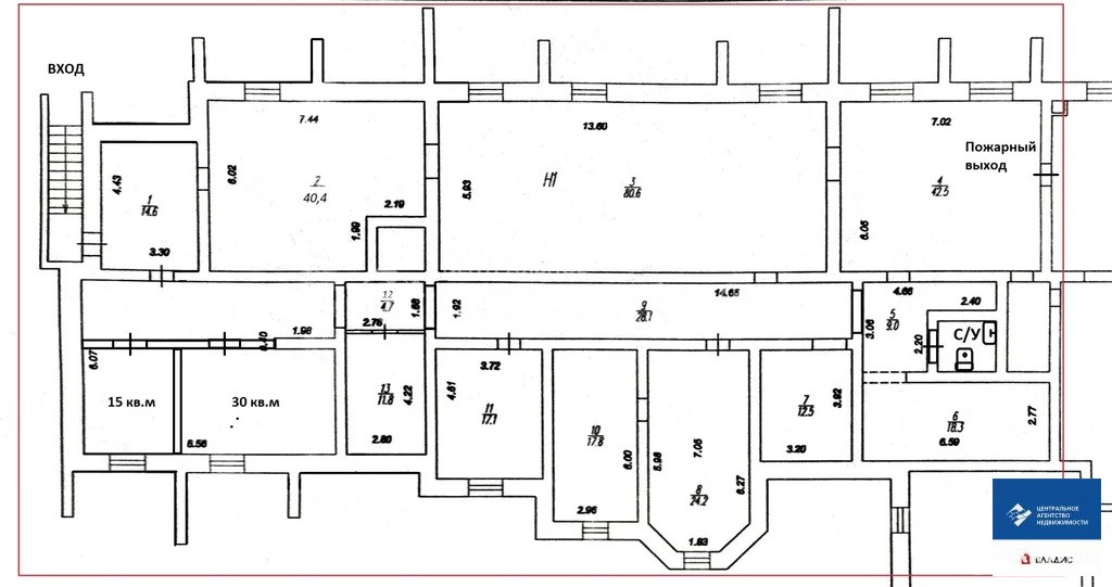
376 м²
Площадь

Это объявление снято с публикации.

Если это ваше объявление, восстановите его в личном кабинете или подайте новое.

В ином случае, вы можете перейти на главную или поискать другие предложения.

Код объекта: 1156803.Продается нежилое помещение свободного назначения с действующим арендатором. Общая площадь 376 кв.м.Расположено в цокольном этаже многоэтажного жилого дома ул. проф. Никулина, д. 10.Район густонаселённый, есть парковка рядом с домом, возможность разгрузки рядом с помещением, нет заборов и шлагбаумов. Планировка кабинетного типа, отдельный вход основной и один пожарный выход, потолки 3, 5 м, наличие окон, санузел, ремонт под офис. Коммуникации: индивидуальное отопление, эл. мощность 15 кВт, хол. вода, интернет. В доме расположены магазины: "Бристоль", "Мясо тут" в шаговой доступности Поликлиника №2 и остановка общественного транспорта. Возможные назначения: объект инвестирования ГАБ с обязательным сохранением действующего арендатора и условий аренды. МАП/мес., офис, склад и другие. AFY-901104038

Дата обновления: 17 февраля 2026