Аренда офисного помещения

12 000 ₽/мес

746 ₽ за м²/мес.

16 м²
Площадь
3/3
Этаж

Поделиться

Добавить в избранное

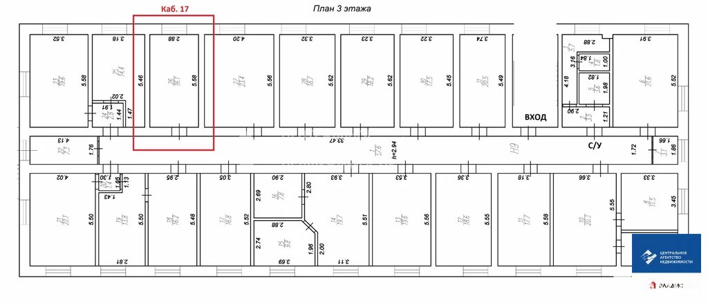
Код объекта: 2006506.Сдаётся в аренду кабинет в нежилом офисном здании Дзержинского 14А. Расположен на третьем этаже. Общая площадь 16, 1 кв.м. Ремонт, планировка свободная, высота потолка 2, 9 м. Сан. узел на каждом этаже раздельный, автономное отопление. В стоимость аренды входит стоимость коммунальных услуг. Есть офисная мебель. К зданию возможен подъезд со стороны улицы Дзержинского и Высоковольтной, есть парковка. Возможные назначения: офис, сфера услуг, обучение и другие. AFY-601863939

Дата обновления: 4 марта 2026