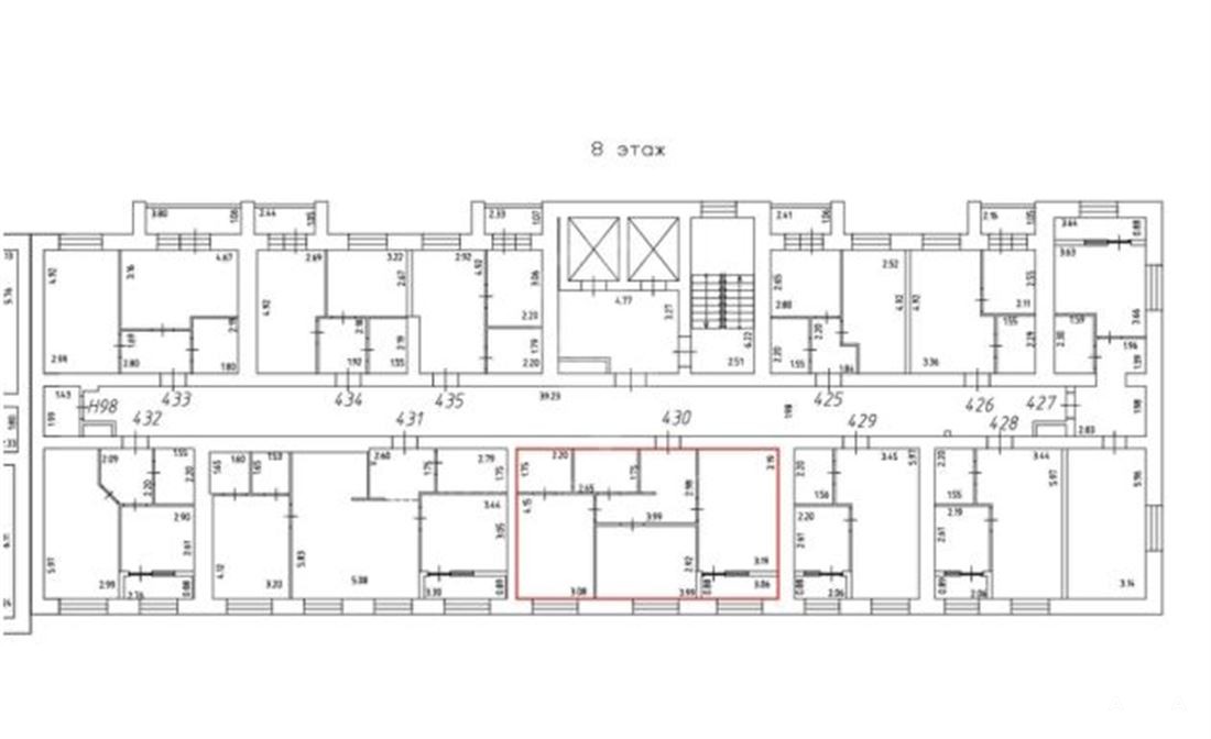
Продажа 2х-комнатной квартиры

59 м²
Площадь
25 м²
Жилая площадь
16 м²
Площадь кухни
8/16
Этаж

6 700 000 ₽

113 560 ₽ за м²

ID объявления 12152610

Поделиться

Добавить в избранное

ПРОДАЕТСЯ 2-комн. квартира 59, 88 кв.м!
ЖК «ЮНЫЙ 8»

ИДЕАЛЬНЫЙ ВАРИАНТ для молодой семьи!
Покупка за наличные или в ИПОТЕКУ( !!поможем существенно снизить ставк!!у) и использовать материнский капитал как первый взнос!!!
О квартире:
Уютная семейная квартира для тех, кто ценит комфорт и функциональность. Здесь у каждого члена семьи есть свое личное пространство. 2 комфортные комнаты на выбор ( 13, и 12 кв.м ) ; одна из комнат оборудована гардеробной; уютная кухня-гостиная для всей семьи ( почти 16 кв.м) с выходом на лоджию( 2, 8 кв.м); функциональная прихожая с выделенной «грязной зоной» (8, 6 кв.м); большой совмещенный санузел (4, 5 кв. м). Варианты внутреннего обустройства будут зависеть от вашей фантазии.
О доме:
Кирпичный дом жилого квартала « Юный» - это достойное продолжение квартальной застройки в районе с развитой инфраструктурой, удобной транспортной доступностью и комфортным расположением в ПРИРОДНОЙ зоне. Свежий воздух, тишина. Рядом с домом зеленая зона для прогулок с детьми и восхитительных спортивных пробежек. Детский сад во дворе дома, школа (активно строится), сетевые магазины и кафе.
Юный 8 – современный дом, который спроектирован с учетом передовых строительных технологий и разнообразных потребностей жителей. ДОМ КИРПИЧНЫЙ ( в таком доме тепло зимой и не жарко летом, бытовые шумы слышны гораздо меньше, чем в монолитных домах) , с АВТОНОМНЫМ ОТОПЛЕНИЕМ , с ЗАКРЫТОЙ ТЕРРИТОРИЕЙ ДВОРА. В доме современные подъезды с дизайнерским холлом, просторными колясочными , современными лифтами и кладовыми на этаже.
САМОЕ время купить лучшую 2-к квартиру по лучшей цене!!!
ОСТАЛИСЬ ВОПРОСЫ ? ЗВОНИТЕ!!!
ПРИ покупке данной квартиры с нами вы гарантированно получаете полное юридическое сопровождение всех этапов сделки, помощь в одобрении ипотеки под комфортную ставку, помощь в использовании мат. капитала.

Дата обновления: 24 декабря 2025