Продажа дома

Рязанская область, Дубровичи,

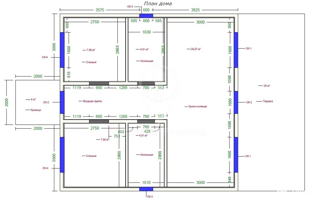
57 м²
Площадь
1
Этажность
8 сот
Площадь участка

7 000 000 ₽

122 808 ₽ за м²

ID объявления 12145144

Поделиться

Добавить в избранное

ID в ИМЛС: 19507713 Продам уютный и стильный дом с двумя спальнями, в живописнoм коттеджном поceлкe «Дубровка», раcполoжeннoм в сeле Дубровичи Рязaнcкого pайона. Этoт уютный угoлок нахoдитcя всeгo в деcяти минутaх езды от гoрoда Рязaнь и в 200 километрах от Москвы, обеспечивая идеальное сочетание загородной тишины и доступности городской инфраструктуры.

-Два вентиляционных выхода в кровле( Фановая вентиляция и принудительная вентиляция С/У)
- Ввод электричества в дом под землей кабелем АВБбшв 4х16 мм ( 15 кВт, 380 в)
-Распределительный щит на, автоматах, дифф. автоматах и УЗО фирмы IEK.
- Силовые розетки - кабель ВВГнг-LS 3х4мм2
-Розетки - кабель ВВГнг-LS 3х2, 5мм2
- Освещение кабель ВВГнг-LS х1, 5мм2
- Отопление на 3-х режимном электрокотле Thermex(3, 6, 9 кВт)
- Электрический бойлер Ballu на 100 л 2, 2 кВт (горячее водоснабжение)
-Отопление и водоснабжение трубы ПП армированные стекловолокном.
-Электрический теплый пол в С/У и на входе.
- Абиссинская скважина 14 м.
-Насосная станция Aquastrong.
-Септик переливной 2 колодца по 2 кольца (D 1, 5м)

Условия покупки:
Дом построен и подходит под все виды ипотечных программ! Сельская ипотека 3%, семейная 6%.
Не упускайте возможность стать частью этого уютного сообщества и начать новую жизнь в комфортном доме среди природы. Звоните прямо сейчас, чтобы узнать больше о предложении и организовать просмотр!

Дата обновления: 17 октября 2025